Uma casa térrea, com luz natural abundante e plantas marcando presença nos ambientes: foram essas as solicitações dos proprietários.
O desafio seria acomodar um programa relativamente extenso para uma casa de pavimento único, num terreno enxuto.
Ao longo das conversas, entendendo a rotina e expectativas da família, percebemos que a cozinha era o espaço mais importante da vivência do espaço, o coração da casa. Foi a partir dela, e de como imaginamos seu papel nessa dinâmica, que avançamos para o entendimento do desenho.

Partimos de uma ocupação modular. Além de setorizar os usos e marcar a cozinha como elemento central de atração e passagem, garantimos que nos vazios entre blocos haja mais luz natural e jardins repletos de plantas, permeando esses interstícios e expandindo a relação entre interior e exterior.
Um eixo-passarela une os módulos e é quem potencializa um percurso rico de sensações e de visuais bem marcados. Planos de cor e de pedra fortalecem a percepção de conexão e unidade entre os módulos, trazendo dinamismo ao desenho.



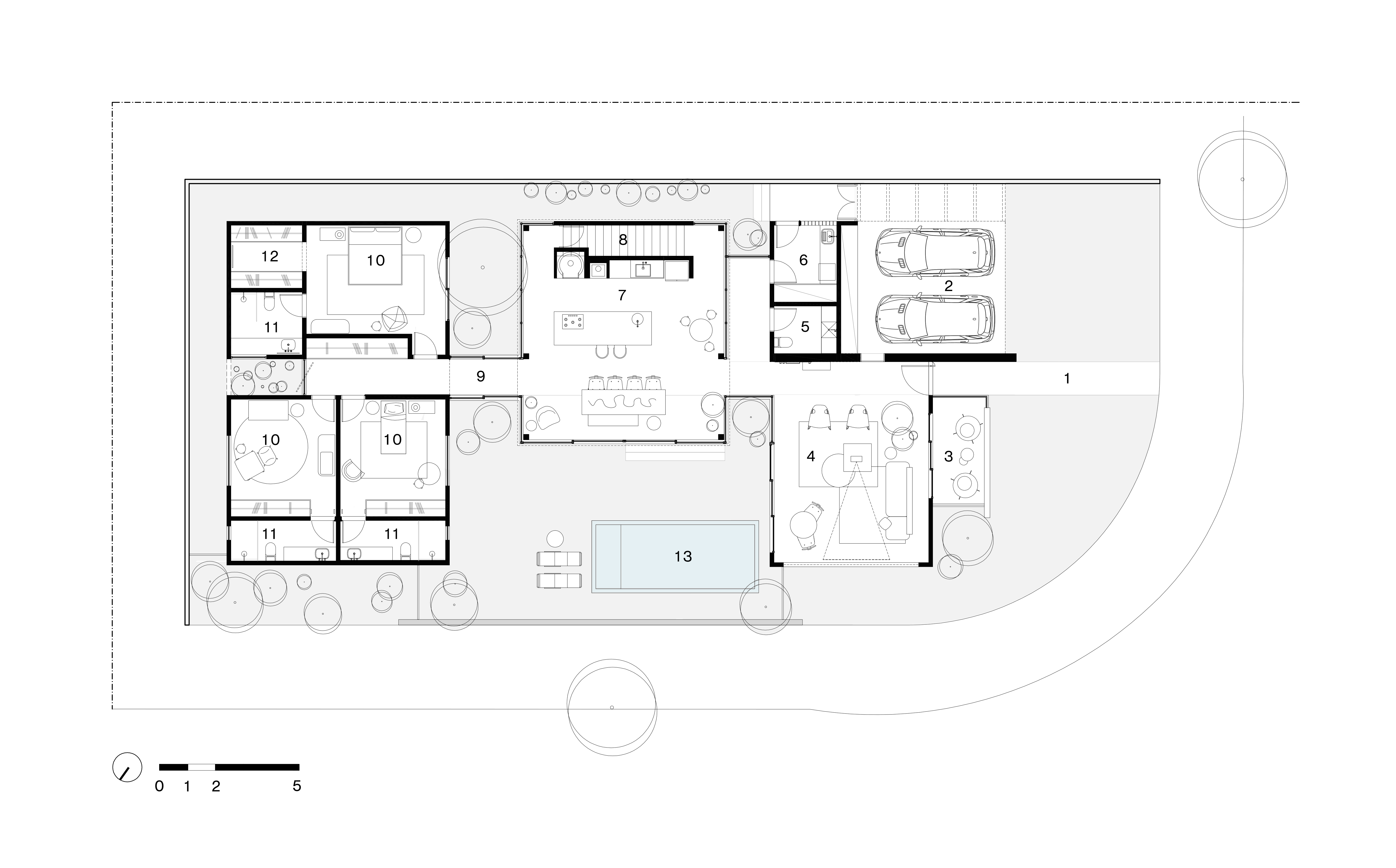
TÉRREO
1. ACESSO PEDESTRES, 2. GARAGEM, 3. VARANDA DESCOBERTA, 4. ESTAR, 5. LAVABO, 6. LAVANDERIA, 7. COZINHA, 8. DESPENSA, 9. CIRCULAÇÃO, 10. SUÍTE, 11. BANHO, 12. CLOSET, 13. PISCINA

MEZANINO
1. MEZANINO
