Escritório familiar

Higienópolis, São Paulo
2025, 130m²
FICHA TÉCNICA
Local: Higienópolis, São Paulo
Projeto: 2025 Obra: -
Área: 130m²
Arquitetura: Gema
Arquitetas: Nara Grossi, Joseana Costa
Arquiteta coordenadora: Bárbara Olyntho
Equipe: Ana Koga, Bárbara Peixoto, Eliza Previato e Marina Keiko

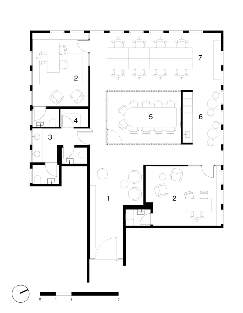
1. RECEPÇÃO, 2. SALA SÓCIO, 3. W.C., 4. DEPÓSITO, 5. SALA DE REUNIÃO, 6. COPA E 7. STAFF