Fomos convidadas pela Ampla Incorporadora para desenvolver os projetos para o interior de todas as áreas comuns de seus empreendimentos: edifícios residenciais, localizados em áreas próximas ao metrô e das principais vias de mobilidade urbana. Um jeito de morar descomplicado e contemporâneo, contemplando apartamentos estúdio, recepção com auto serviço, estar, espaço pet, spa, bar, espaços de trabalho, academia, yoga, piscina, dentre outras comodidades.
Era importante que os espaços internos fossem inspiradores, trazendo fluidez e criando percursos leves e intuitivos. Nesse sentido buscamos uma unidade entre os ambientes, trabalhando com pouca variação de materiais e revestimentos onde as cores trazem ritmo e legibilidade ao longo dos usos e pavimentos.
Desenvolvemos uma lógica projetual onde cada prédio tem sua própria identidade na relação de fluxo e acabamentos e, ao mesmo tempo, que todos os empreendimentos tenham unidade na percepção do desenho dos interiores.






















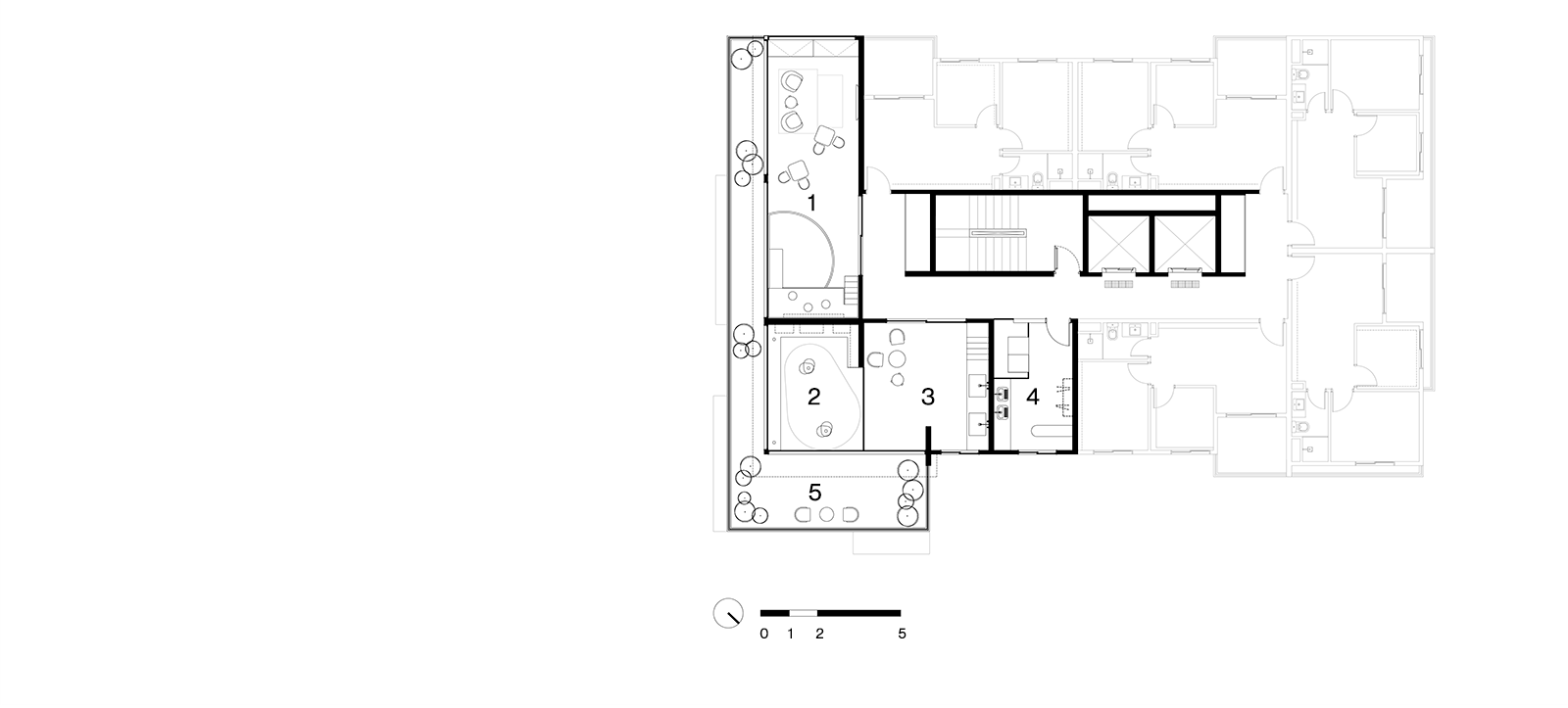
ÁTICO
1. VARANDA, 2. BANHO, 3. ACADEMIA, 4. YOGA

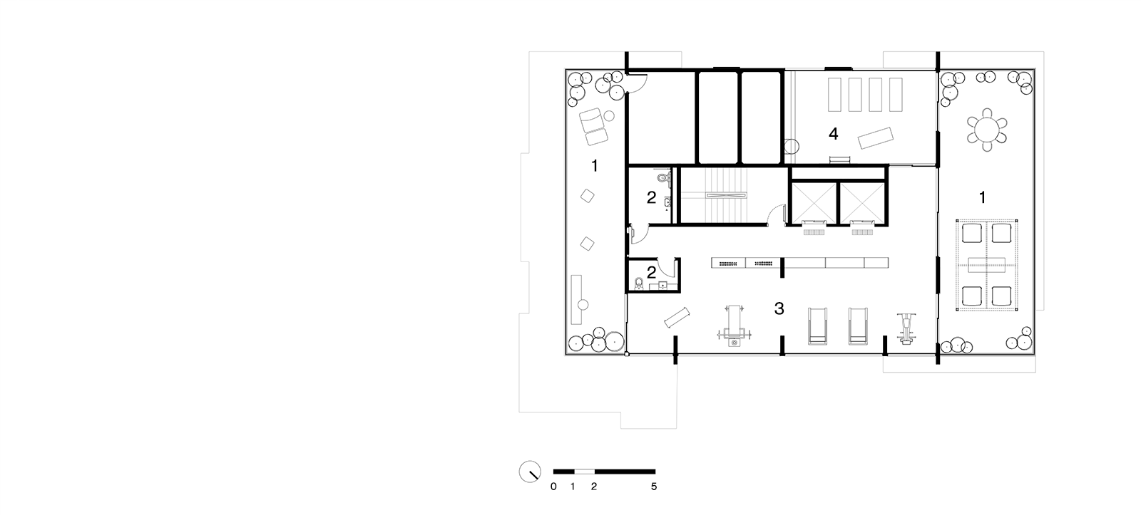
12° PAVIMENTO
1. BRINQUEDOTECA, 2. ESPAÇO CAT, 3. PET CARE, 4. LAVANDERIA, 5. LAZER DESCOBERTO

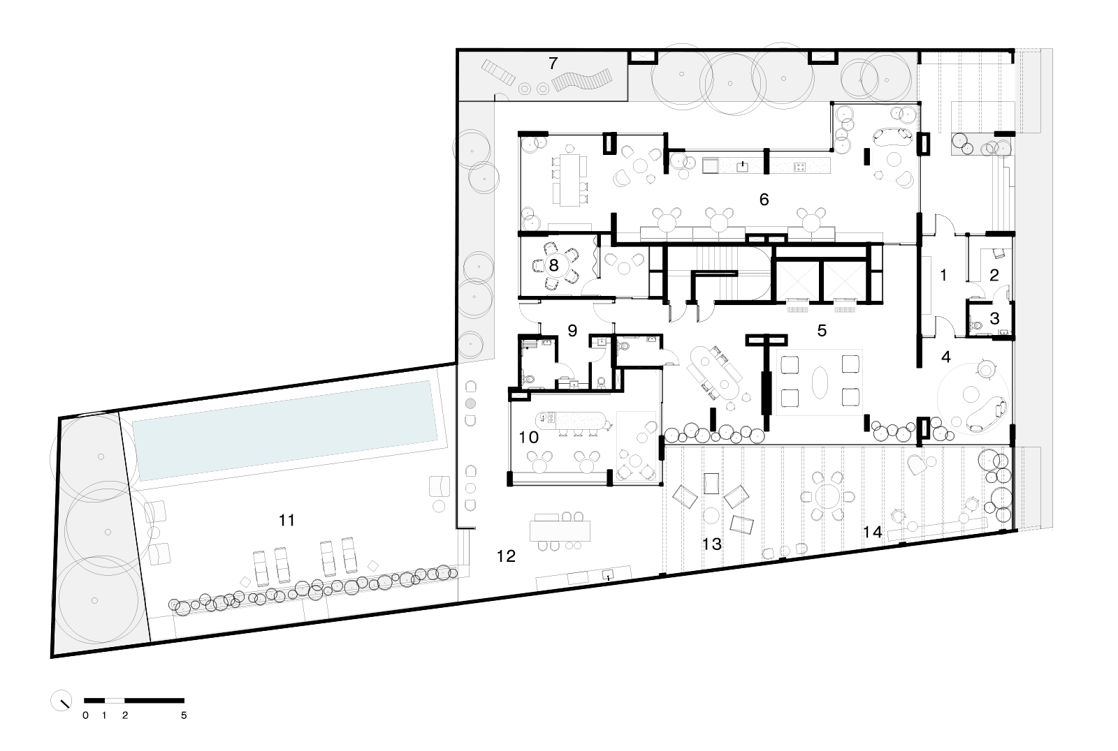
TÉRREO
1. CLAUSURA, 2. PORTARIA, 3. BANHO PORTARIA, 4. LOBBY, 5. LOUNGE, 6. GOURMET/FESTAS, 7. ESPAÇO DOG, 8. REUNIÃO, 9. BANHOS PISCINA, 10. CHÁ E DRINKS, 11. DECK E PISCINA, 12. CHURRASQUEIRA, 13. FIRE PLACE, 14. LAZER DESCOBERTO