Acolher, cuidar, ouvir o outro. Para o projeto deste consultório de Psicanálise, a demanda foi de um novo espaço que acomodasse atendimentos presenciais e remotos.
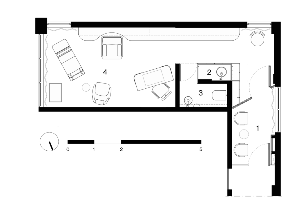
Entendemos que as soluções deveriam, além de proporcionar uma ambiência aconchegante, acomodar espaços de serviço, como uma copa para pequenos almoços; banheiro; armários funcionais para materiais de uso diário e sala de espera.






Com 30m² de área, nosso desenho vem para trazer ritmo no entendimento dessas camadas de uso. Os planos — linhas — de marcenaria se unem ao volume de serviços, que foi ampliado para acomodar os usos de forma discreta e, ao mesmo tempo, isolado do espaço de atendimento.
A marcenaria, em uma cor só, cria a percepção de harmonia e unidade na medida em que recebe o paciente de forma intimista e guia o acesso ao espaço do consultório, que se revela sala adentro.



E para trazer a percepção de união e continuidade entre os espaços, desenhamos um grande aparador longilíneo com suas faces curvas, que distende a ocupação e é o protagonista do ambiente.
Cada elemento pensado para favorecer a escuta e o conforto.







1. ESPERA, 2. COPA, 3. W.C. E 4. CONSULTÓRIO

